titleroissypôle
projectacademic - ensap val-de-seine
teamana julia maciel and laura consoni
year2024/1
RoissyPole is a multifunctional complex at Charles de Gaulle Airport in Paris, offering a wide range of services and conveniences for travelers and aviation professionals. With hotels, offices, shops, restaurants, and conference centers, RoissyPole serves millions of passengers annually, functioning as an important economic and logistical hub.
In addition to its services, RoissyPole is highly accessible due to its integration with Paris' public transportation system, including high-speed trains (TGV), the RER, and buses, ensuring easy access to the city center and other regions.
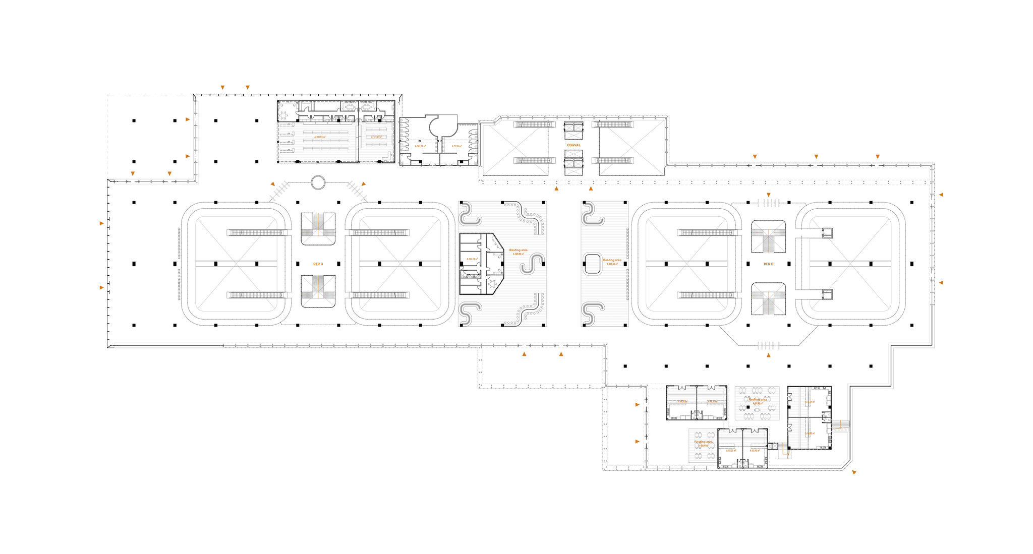
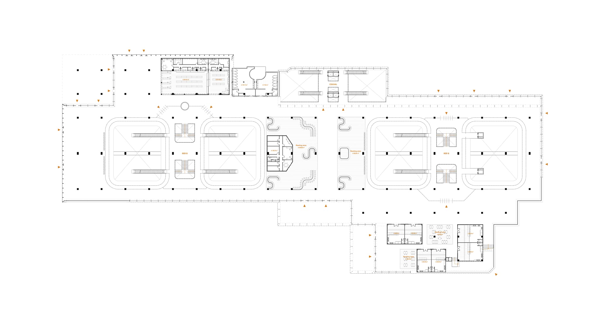
Our project aims to improve the interaction between passengers, station employees, and complex workers by providing a better-equipped and better-organized space. The reorganization of the CDGVAL transport system facilitates circulation, while the new layout of the station's internal equipment creates an intuitive flow for visitors.
Furthermore, the creation of aluminum and canvas modules, inspired by the original mushroom-shaped pillars, connects the station to the bus terminal. We activated the southern zone by extending the canopy, transforming an obsolete area into a gastronomic space with improved connection to the exterior. Finally, the central area becomes more inviting, offering various facilities for sales, waiting, and information.





