port
/
eng
titleloft 6x6
projectacademic - u. presbiteriana mackenzie
teamindividual
year2021/1
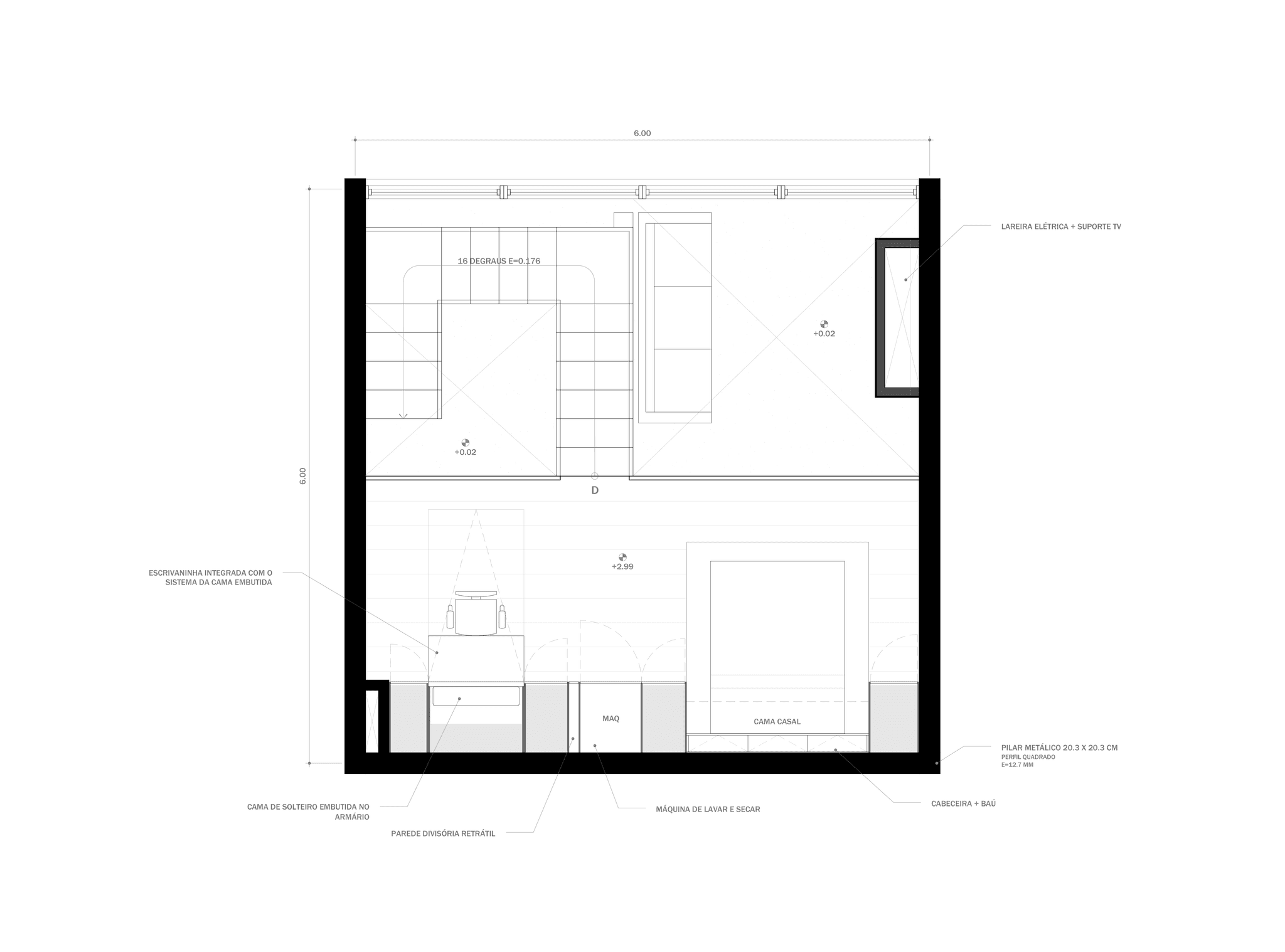
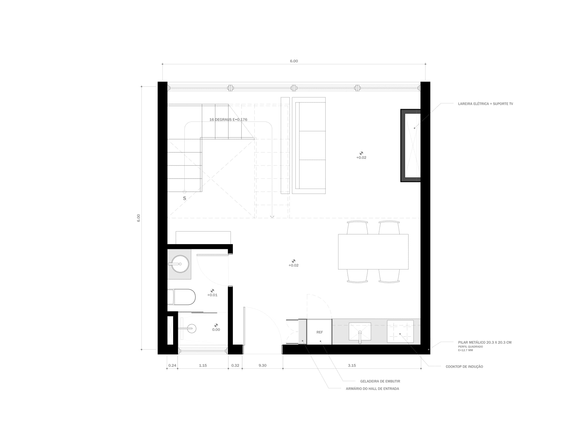
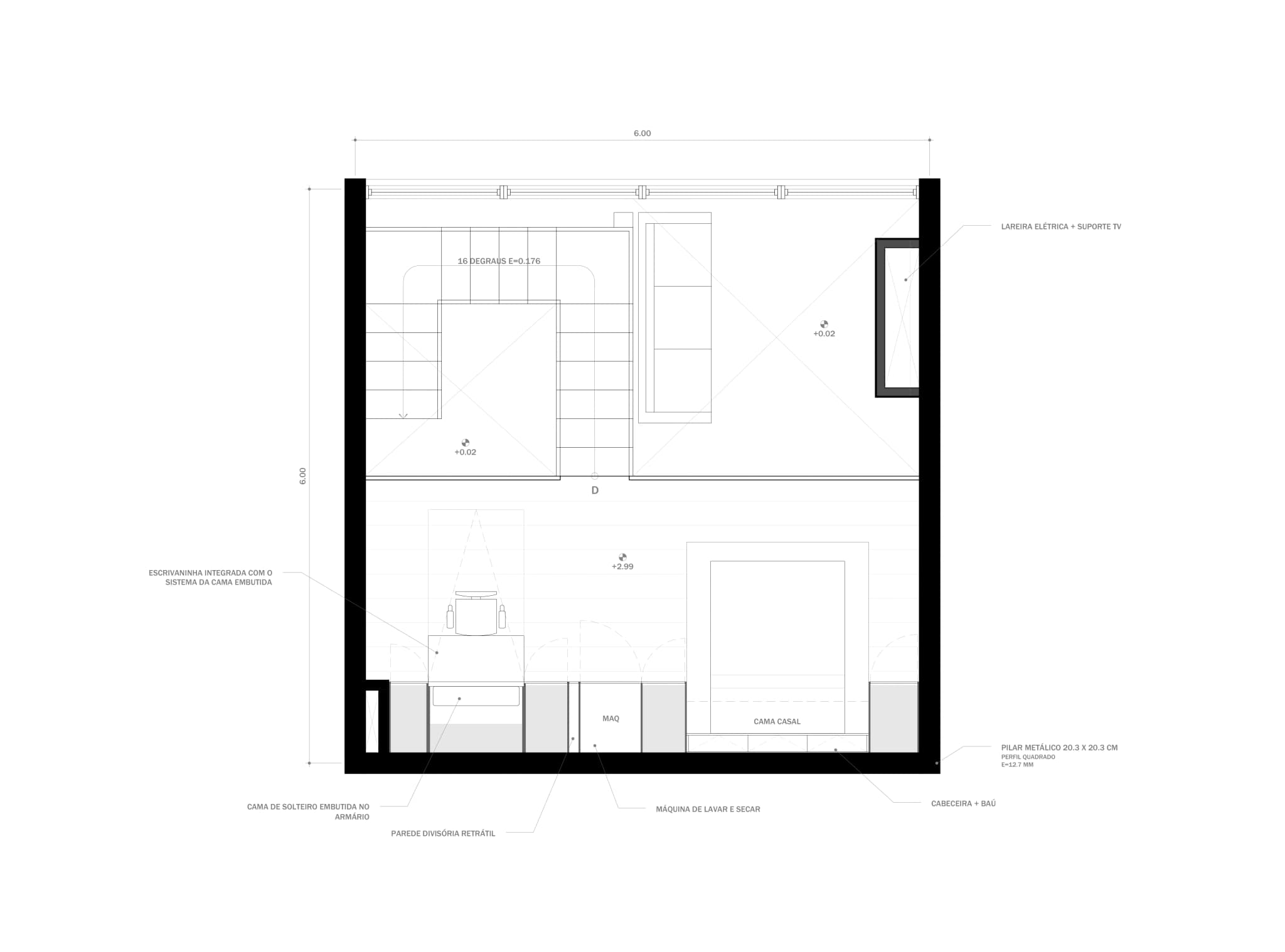
Based on the creation of the Quadra Cubo, 6m x 6m lofts were developed to form its composition. The units were built with a metal structure and drywall walls supported by a steel frame.
The layout was designed with the comfort and well-being of future residents in mind.
Designed to accommodate a maximum of three people, the loft has a spacious ground floor integrating the living room and kitchen, optimizing the available area.
On the second level, the mezzanine was designed with a main double bed and another single bed embedded in the closet, allowing flexible use depending on each family's needs.






